横浜/JR京浜東北線「鶴見駅」西口徒歩2分!駅近好立地1階路面!クラブ・キャバクラおすすめスケルトン貸店舗!!
やま3ビルこの物件に関するお問い合わせはこちらから
0120-948-510
物件ID SP-7076
お電話での問い合わせ時に物件IDをお伝えください。
※気になる物件リストから、まとめて問い合わせや内見依頼ができます。
リストへの追加は最大20件まで可能です。
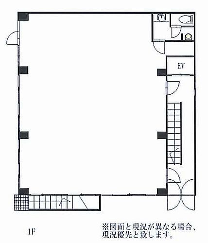
図面などと現況が異なる場合は現況を優先します。
物件ID
SP-7076
この物件について、問い合わせや内見依頼
電話連絡
0120-948-510
受付担当に物件IDをお伝え下さい。
当サイトを通じて、この物件で店舗を開業しカラオケ設置される場合は、弊社指定業者とのカラオケ契約が条件となります。
物件情報
| コメント | 横浜/JR京浜東北線「鶴見駅」西口徒歩2分!駅近好立地1階路面!クラブ・キャバクラおすすめスケルトン貸店舗!! |
|---|---|
| 物件住所 | 神奈川県横浜市鶴見区豊岡町 |
| 最寄駅 |
JR京浜東北線 「鶴見」駅 徒歩2分
|
|---|---|
| 坪数 | 40.08坪 ( 132.49㎡ ) |
| 所在階 | 1階 |
| 物件ID | SP-7076 |
|---|---|
| 建物 | 地上5階 |
| 築年月 | 1970年 |
| 賃料(税込) | 825,000円 (うち消費税75,000円) |
|---|---|
| 管理費(税込) | |
| 共益費(税込) |
| 敷金 | 6ヶ月 |
|---|---|
| 礼金(税込) | 1ヶ月 |
| 再契約料 | 新賃料 1ヶ月 |
| 賃料坪単価(税込) | 20,584円/坪 |
| 賃料総額(税込) | 825,000円 |
|---|---|
| 償却(税込) | |
| 造作代金 | |
| 契約期間 | 定期借家 3年 |
| 設備状況等備考 | ・賃貸保証:加入要(指定会社あり。・初回保証料:月額総支払額の100%・年間保証料:月額総支払額の10%) ・契約期間:2024年契約開始の場合は定期借家4年 |
|---|
| 初期費用(概算) |
|---|
|
約698万円
※この金額は、物件詳細に表示されている情報を基に算出した概算です。参考値としてご使用の上、契約時の正確な金額に関しては、別途お問い合わせ下さい。尚、この金額には不動産会社に支払う仲介手数料も含まれています。 |
地図
(物件周辺の地図を表示しており、赤色のピンは物件の正しい位置を指していません。)物件ID
SP-7076
この物件について、問い合わせや内見依頼
電話連絡
0120-948-510
受付担当に物件IDをお伝え下さい。


