横浜/JR京浜東北線「鶴見駅」西口よりバス13分「上末吉郵便局前」停留所徒歩1分!末吉大通り沿い1階路面スナック居抜き店舗!!
ベルメゾン・エスペランスト上末吉・1階104号室
この物件に関するお問い合わせはこちらから
0120-948-510
物件ID SP-6868
お電話での問い合わせ時に物件IDをお伝えください。
※気になる物件リストから、まとめて問い合わせや内見依頼ができます。
リストへの追加は最大20件まで可能です。
図面などと現況が異なる場合は現況を優先します。
物件ID
SP-6868
この物件について、問い合わせや内見依頼
電話連絡
0120-948-510
受付担当に物件IDをお伝え下さい。
当サイトを通じて、この物件で店舗を開業しカラオケ設置される場合は、弊社指定業者とのカラオケ契約が条件となります。
物件情報
| コメント | 横浜/JR京浜東北線「鶴見駅」西口よりバス13分「上末吉郵便局前」停留所徒歩1分!末吉大通り沿い1階路面スナック居抜き店舗!! |
|---|---|
| 物件住所 | 神奈川県横浜市鶴見区上末吉5丁目 |
| 最寄駅 |
JR京浜東北線 「鶴見」駅 徒歩40分
|
|---|---|
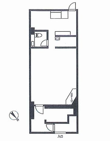
| 坪数 | 19.46坪 ( 64.33㎡ ) |
| 所在階 | 1階 |
| 物件ID | SP-6868 |
|---|---|
| 建物 | 地上6階 |
| 築年月 | 1979年 |
| 賃料(税込) | 115,500円 (うち消費税10,500円) |
|---|---|
| 管理費(税込) | 22,169円 |
| 共益費(税込) |
| 保証金 | 500,000円 |
|---|---|
| 礼金(税込) | 1ヶ月 |
| 更新料 | 新賃料 1ヶ月 |
| 賃料坪単価(税込) | 5,935円/坪 |
| 賃料総額(税込) | 137,669円 |
|---|---|
| 償却(税込) |
保証金(敷金)20% (解約時償却) |
| 造作代金 | |
| 契約期間 | 3年 |
| 設備状況等備考 |
|---|
| 初期費用(概算) |
|---|
|
約87万円
※この金額は、物件詳細に表示されている情報を基に算出した概算です。参考値としてご使用の上、契約時の正確な金額に関しては、別途お問い合わせ下さい。尚、この金額には不動産会社に支払う仲介手数料も含まれています。 |
地図
(物件周辺の地図を表示しており、赤色のピンは物件の正しい位置を指していません。)物件ID
SP-6868
この物件について、問い合わせや内見依頼
電話連絡
0120-948-510
受付担当に物件IDをお伝え下さい。
最寄駅やエリアが同じ物件
read more
- 29.93坪
- 45.10 万円


