金沢市片町エリア 金劇パシオン3階!広めな空間の居抜き店舗!ラウンジ・スナックにおすすめ!
金劇パシオン3階314号室
この物件に関するお問い合わせはこちらから
0120-948-510
物件ID TX-1577
お電話での問い合わせ時に物件IDをお伝えください。
※気になる物件リストから、まとめて問い合わせや内見依頼ができます。
リストへの追加は最大20件まで可能です。
図面などと現況が異なる場合は現況を優先します。
物件ID
TX-1577
この物件について、問い合わせや内見依頼
電話連絡
0120-948-510
受付担当に物件IDをお伝え下さい。
当サイトを通じて、この物件で店舗を開業しカラオケ設置される場合は、弊社指定業者とのカラオケ契約が条件となります。
物件情報
| コメント | 金沢市片町エリア 金劇パシオン3階!広めな空間の居抜き店舗!ラウンジ・スナックにおすすめ! |
|---|---|
| 物件住所 | 石川県金沢市片町1丁目 |
| 最寄駅 |
北陸鉄道石川線 「野町」駅 徒歩10分
|
|---|---|
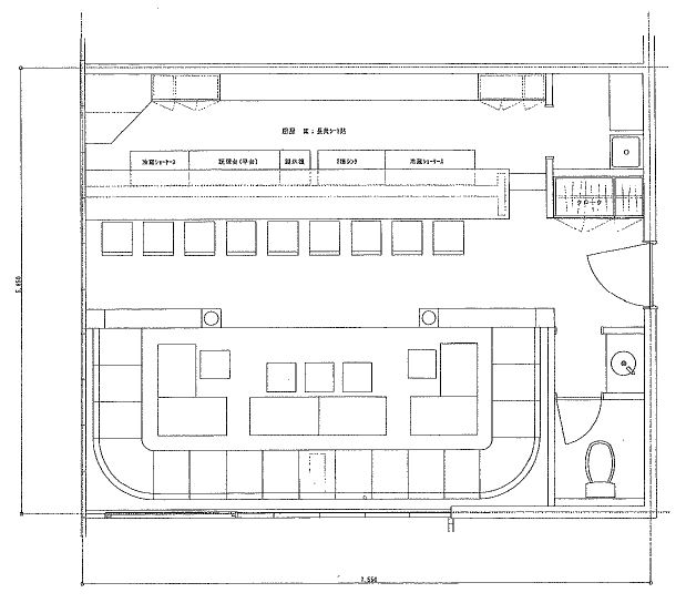
| 坪数 | 13.36坪 ( 44.16㎡ ) |
| 所在階 | 3階 |
| 物件ID | TX-1577 |
|---|---|
| 建物 | 地上7階 地下1階 |
| 築年月 | 1999年 |
| 賃料(税込) | 応相談 |
|---|---|
| 管理費(税込) | |
| 共益費(税込) | 58,784円 |
| 敷金 | 6ヶ月 |
|---|---|
| 礼金(税込) | |
| 再契約料 | |
| 賃料坪単価(税込) |
| 賃料総額(税込) | 応相談 |
|---|---|
| 償却(税込) | |
| 造作代金 | |
| 契約期間 | 定期借家 2年 |
| 産業廃棄物処理費用 | 4,676 円/月(税別) |
|---|---|
| 害虫駆除費(年3回) | 4,008 円/年(税別) |
| グリストラップ・エアコン清掃費(年4回) | 20,000 円/年(税別) |
| 設備状況等備考 | エアコン冷暖、ビル内防犯カメラ、エレベーター2基、冷蔵庫あり 権利金:3ヶ月 看板費:18,000円程度 敷金:100%返還あり(2年未満の解約は1ヶ月分返金なし) 管理会社指定の保証会社加入 賠償責任保険加入 不可業態:キャバクラ、ガールズバー、風俗 |
| 初期費用(概算) |
|---|
|
応相談
※この金額は、物件詳細に表示されている情報を基に算出した概算です。参考値としてご使用の上、契約時の正確な金額に関しては、別途お問い合わせ下さい。尚、この金額には不動産会社に支払う仲介手数料も含まれています。 |
地図
(物件周辺の地図を表示しており、赤色のピンは物件の正しい位置を指していません。)物件ID
TX-1577
この物件について、問い合わせや内見依頼
電話連絡
0120-948-510
受付担当に物件IDをお伝え下さい。


